Italiano
96.000 €

EMPOLI CENTRO VICINO STAZIONE AMPIO 3 VANI CON TERRAZZA

3 locali in vendita • Empoli - VIA PALADINI
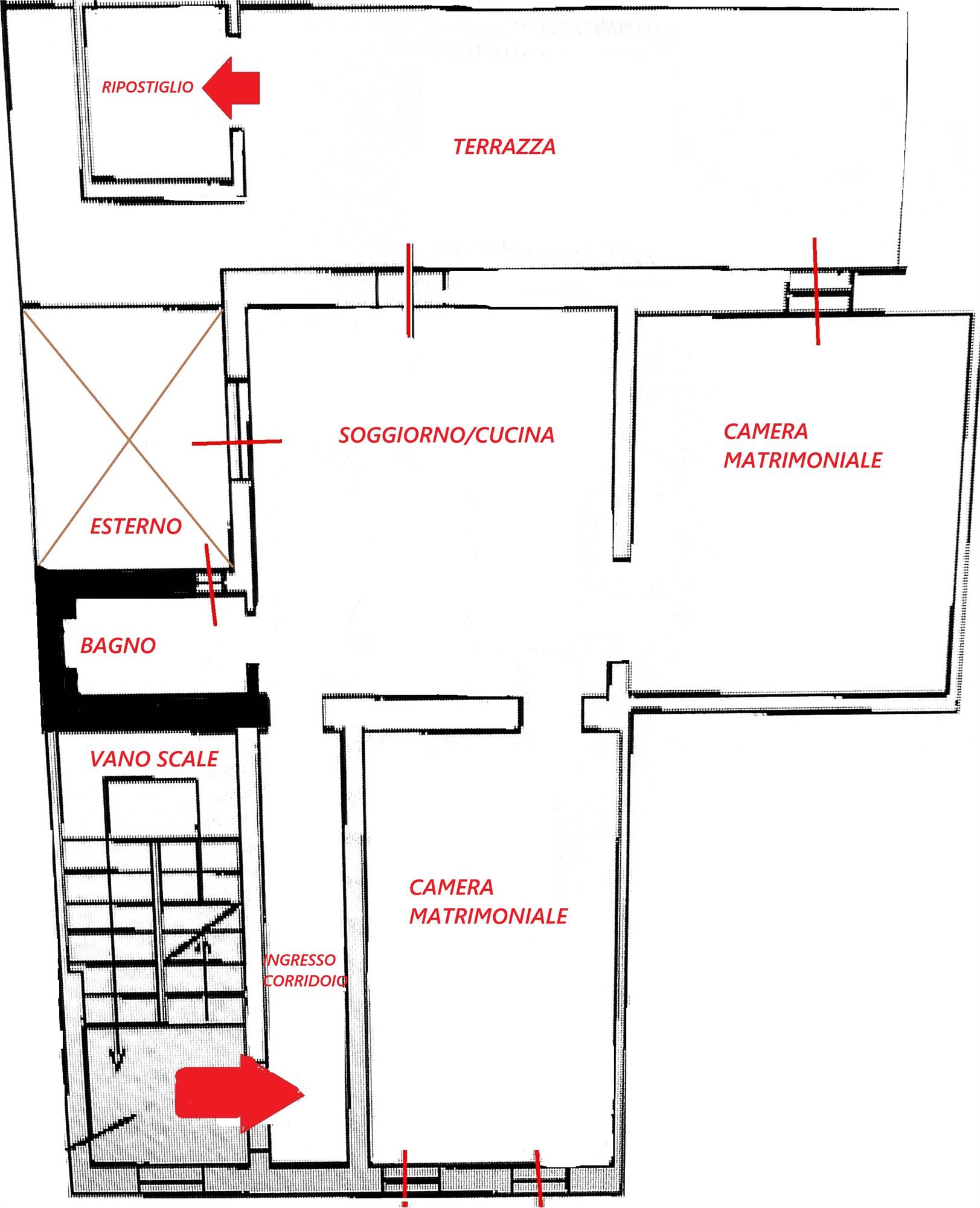
Empoli, in zona ottimamente servita tra la stazione ferroviaria e il centro storico (via Giuseppe del Papa ), al secondo piano di palazzina di tre piani con un solo appartamento al piano, proponiamo appartamento di 70 mq commerciali in buone condizioni così composto: Ingresso, zona giorno con cucina a vista da cui si accede direttamente alla ampia terrazza abitabile con piacevole affaccio sui tetti e dove troviamo anche un ripostiglio/lavanderia.
Due ampie camere matrimoniali e BAGNO PICCOLISSIMO, ma finestrato. L’immobile è dotato di aria condizionata, che serve anche per il riscaldamento, perché attualmente non vi è presente il gas, ma c’ è la possibilità facilmente di allacciarsi.
Classe energetica G ipe 562,84
Ottimo anche per investimento ad alto reddito.

RICHIESTA € 96.000 N.T

INVIARE MAIL CON IL PROPRIO CELLULARE E SARETE CHIAMATI AL PIU’ PRESTO.

VISITATE IL NS. SITO WWW.STARTHOUSE.IT PER MOLTE ALTRE PROPOSTE IMMOBILIARI SIA DI VENDITA CHE DI LOCAZIONE.
Caratteristiche principali
Codice
V000201
Città
Empoli
Categoria
3 locali
Prezzo
96.000 €
Locali
3
Camere
2
Bagni
1
Mq
70
Terrazzi
1
mq Terrazzo
15
Piano
2
Classe energetica
G
562,84 kWh/m²a
Stato Immobile
Abitabile
Grado
Medio
Posizione
Centro
Panorama
Vista Aperta
Orientamento
Nord Ovest Sud Est
Lati Liberi
2
Giardino
No
Arredi
Possibilità
Tipo Soggiorno
Soggiorno
Tipo Cucina
A Vista
Riscaldamento
Autonomo
Tipo Riscaldam.
Pompa di Calore
Tipo Impianto
Aria
Fonte Energetica
Elettrico
Acqua Calda
Autonoma
Raffrescamento
Split
Infissi
PVC Doppio Vetro
Serramenti
Ottimo
Persiana
Persiana Legno
Pavim. Giorno
Gres Porcellanato
Pavim. Notte
Ceramica
Pavim. Cucina
Gres Porcellanato
Pavim. Bagno
Ceramica
Accesso Disabili
No
Accesso interno disabili
Non accessibile

Accessori: Aria Condizionata, Doppi Vetri, Lavanderia, Porta Blindata, Ripostiglio

Mappa
VIA PALADINI , Empoli (FI)
Richiedi informazioni
Invia
Cookie preference